Depois da aprovação da maquete eletrônica (3D), quando toda a linguagem estética, materialidade e atmosfera do projeto já estão definidas, inicia-se uma das etapas mais decisivas para o resultado da obra: o projeto executivo e os detalhamentos técnicos (áreas molhadas e marcenaria).
É nesse momento que o projeto deixa de ser apenas visual. Tudo o que foi pensado, testado e aprovado em 3D precisa agora ser traduzido tecnicamente, com medidas, especificações e definições claras para execução.
O que é, na prática, um projeto executivo
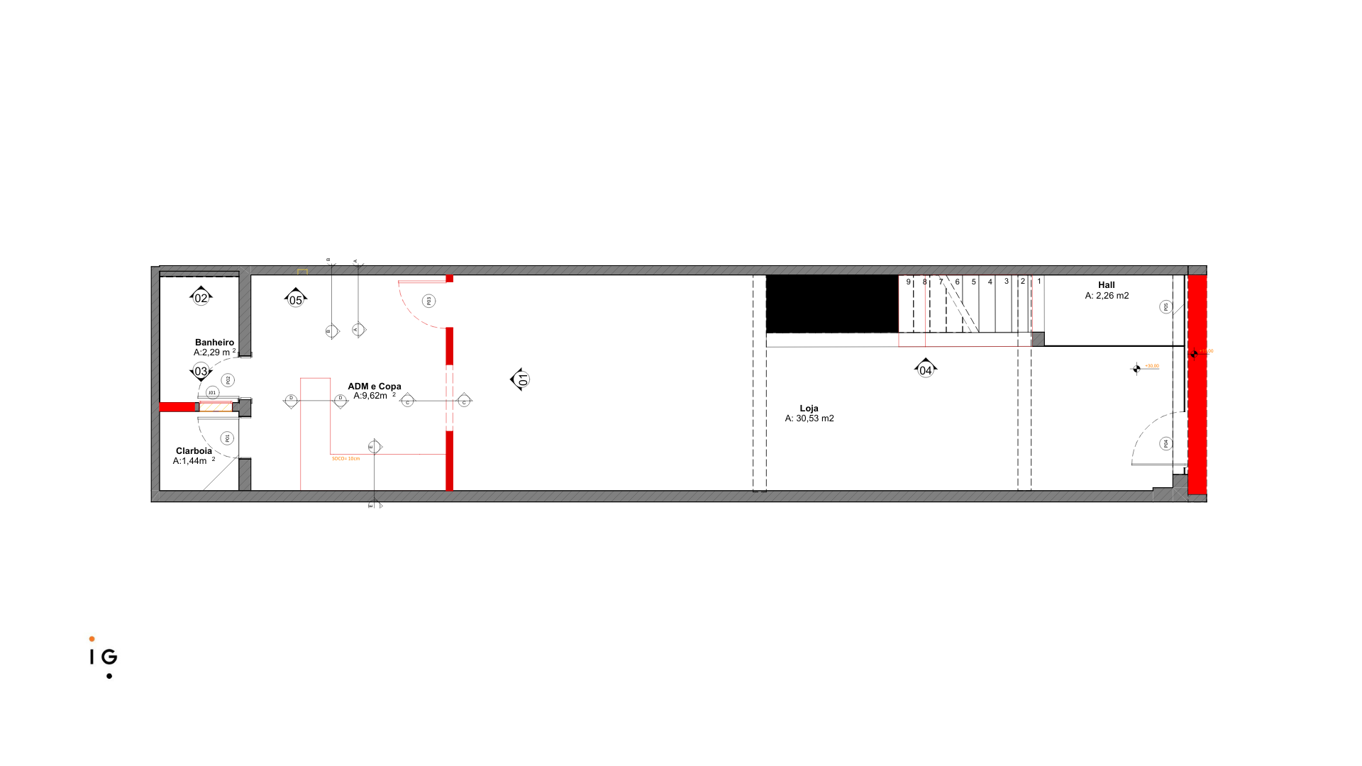
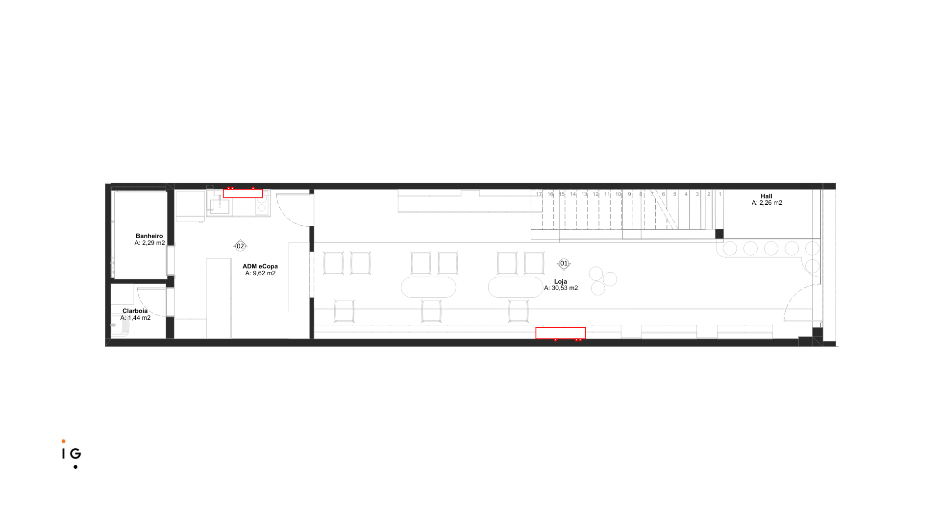
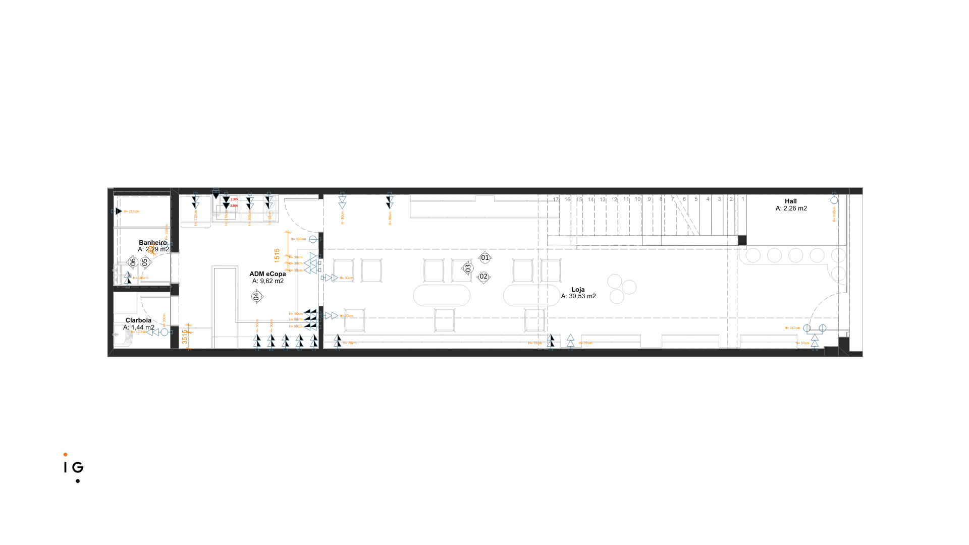
O projeto executivo é o conjunto de desenhos técnicos que orienta a obra do início ao fim. Ele organiza todas as informações necessárias para que a execução aconteça sem dúvidas, reduzindo a dependência de interpretações no canteiro.
Entre os principais itens que compõem essa etapa estão:
A planta de layout definitivo, que consolida a organização dos ambientes e o posicionamento final dos móveis e ambientes.
A planta de reforma ou planta civil, que define demolições, construções e alterações de alvenaria e esquadrias.
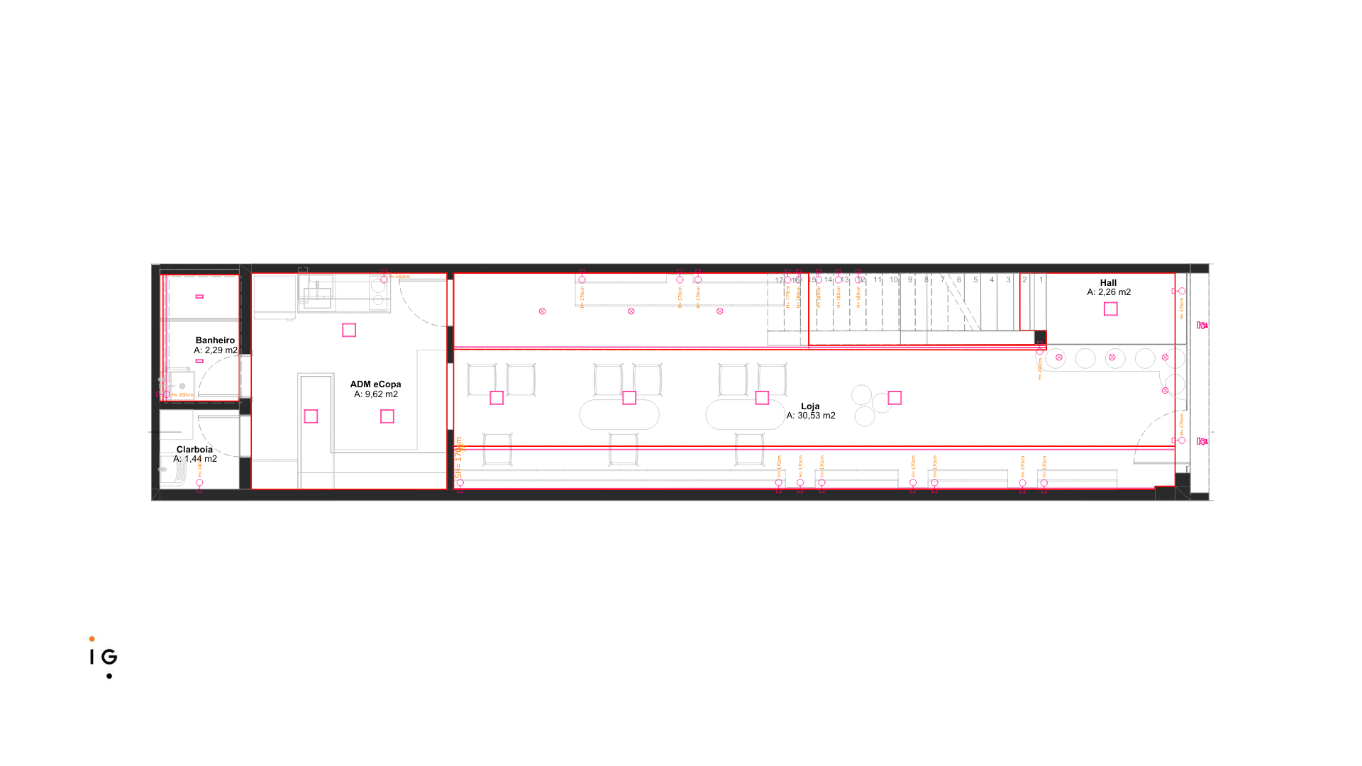
Os pontos elétricos, com a localização de tomadas, interruptores, rede de internet, antena e etc. para atender aos equipamentos e alinhar ao uso real dos espaços.
Os pontos hidráulicos, que indicam entradas de água, saídas de esgoto, posições de registros gerais e específicos, ralos posições de bacias sanitárias e entrada de gás.
O projeto de forro, com definição de níveis, alturas de pé direito, rebaixos e detalhes estéticos como rasgos com iluminação indireta, sancas e cortineiros.
O projeto luminotécnico que abrange a planta de iluminação e os circuitos, que determinam não só onde estarão as luminárias, mas como a iluminação será percebida e acionada.
O projeto de climatização, que organiza a posição para as máquinas de ar-condicionado e também os BTU’s necessários para cada ambiente.
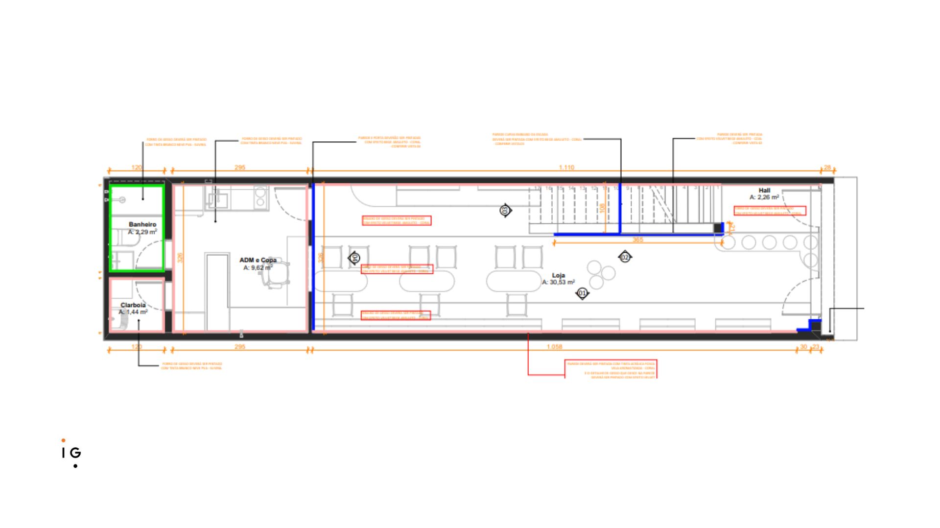
O projeto de pintura, com especificação de cores e acabamentos como papel de parede e texturas.
E a paginação de piso geral, que orienta o assentamento dos revestimentos em todos os ambientes, além de posição de soleiras e rodapés. Importante ressaltar que além do benefício de definirmos a melhor paginação desses revestimentos, é gerado um quantitativo de peças, garantindo uma compra mais precisa e evitando desperdício de materiais.


O detalhamento técnico
Dentro da etapa de obra, o detalhamento técnico vem para complementar o projeto executivo. Nessa etapa é detalhado tudo que é relacionado as áreas molhadas e marcenaria.
No detalhamento de áreas molhadas, posicionamos os acabamentos dos pontos definidos na etapa de executivo além de outras especificações importantes como os detalhamentos das bancadas de pedra, box, entre outros.
Banheiros, cozinhas, áreas de serviço, lavabos e áreas gourmets precisam de definições completas para evitar improvisos na obra.
Nessa etapa, são especificados todos os elementos desses espaços: louças, metais, pedras e acabamentos. Bancadas são desenhadas com medidas exatas, prevendo encaixes, recortes acabamento e tipologia da pedra utilizada.
Além disso, é feita a paginação dos revestimentos de piso e parede, indicando alinhamentos, cortes e encontros entre peças. Esse desenho garante que o resultado seja coerente com o projeto e evita soluções improvisadas durante a execução.
Assim como na obra a marcenaria é a última a entrar, o detalhamento ode marcenaria vem para fechar a etapa de detalhamentos técnicos.
No detalhamento de marcenaria, todos os elementos sob medida, como armários, painéis, bancadas e mobiliário fixo, são definidos com precisão técnica. Nele, especificamos dimensões, materiais, acabamentos, sistemas de abertura, ferragens e encaixes, garantindo que cada peça se integre perfeitamente ao espaço e ao conceito do projeto. Um bom detalhamento é o que assegura funcionalidade, ergonomia e qualidade na execução, evitando improvisos na obra e alinhando exatamente o que foi projetado com o que será produzido.
.png?alt=media&token=055a6a5b-12f0-4a94-9224-45d9fcdb2887)
Por que essa etapa faz diferença na obra
Sem um projeto executivo bem desenvolvido, a obra passa a depender de decisões tomadas no dia a dia do canteiro. Isso costuma gerar retrabalho, desperdício de material e diferenças em relação ao que foi aprovado na maquete eletrônica.
Quando o projeto está detalhado, a execução se torna mais previsível, organizada e fiel ao conceito original.
O projeto executivo não é uma formalidade técnica, é ele que garante que o projeto saia do papel exatamente como foi pensado de forma funcional e assertiva.
